운송 솔루션 트레일러 장치 유압 시스템 부속품 램프/케이블 안전 제품

A300C

  • Detail | 제품상세

    JOST China

    - 경제적이고 실용적인 솔루션
    - A400C 기반의 신뢰성 높은 부품 적용
    - 유지보수가 간단하고 내구성이 높아 총 운영비 절감

    *Easy Crank가 적용된 모델
    - 적은 힘으로 레그를 올리거나 내릴 수 있어 운용 편의성 증가
    - 작업자의 피로도 감소 → 장시간 작업에도 효율 유지
    - 부드럽고 안정적인 크랭킹으로 정밀한 높이 조절 가능
    - 가벼운 조작감 유지 → 작업 시간 단축

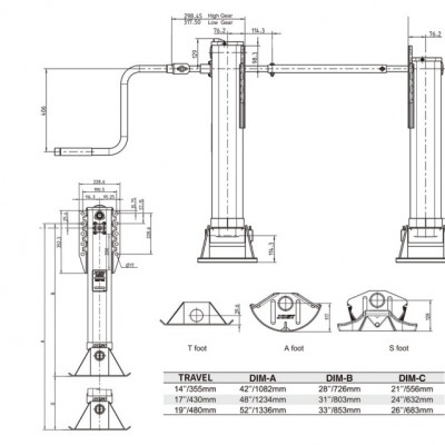
    *백플레이트 종류: Short / Long
    *적용 가능한 Foot: T / A / S2 / G

    인양 용량 28t
    정적 하중 75t
    핸들 1회전당 상승량 Low: 0.83mm High: 7.5mm
    Travel Options 21" → 530 mm 19" → 480 mm 17" → 430 mm 14" → 355 mm
    도장 방식 파우더 코팅